诚卓高端套三清水

  • 图片(8)
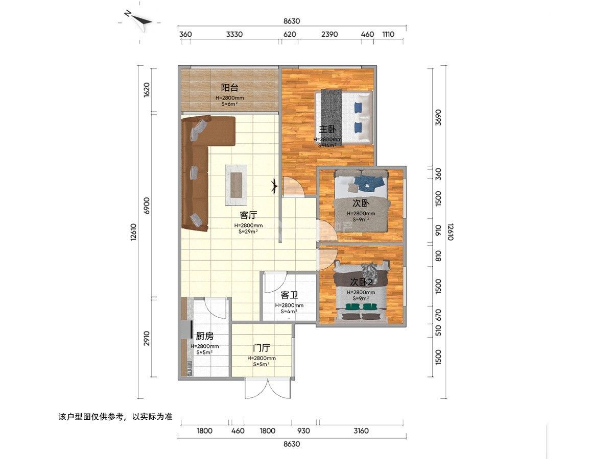
  • 户型图(1)
分享房源
69.8
6876.85 元/m²
3室2厅
低层 /共27层
西 西南
毛坯
101.5m²
2020年建/ 住宅
小区名称 诚卓高端
所在区域 简阳城区   河东新区
所属学区 射洪坝第一初级中学
房源编号 M-39174
看房时间 随时看房
18402883503
满两年
电梯
随时看房

基本信息

基本属性
  • 房屋户型 3室2厅 1厨 1卫 1阳台
  • 所在楼层 低层 /共27层
  • 建筑面积 101.5m²
  • 房屋税收 个税
  • 使用面积 0m²
  • 建筑类型 高层
  • 附属面积 0m²
  • 房屋布局 平层
  • 房屋朝向
  • 建筑结构 钢混结构
  • 装修情况 毛坯
  • 梯户比例 3梯5户
  • 所属学区 射洪坝第一初级中学
  • 出让年限 70年
  • 交易权属 私产
  • 房屋用途 住宅
  • 房屋标签 电梯
  • 房屋特色 暂无数据
  • 房屋配套

房源照片

户型图
看房记录
带看时间
带看经纪人
咨询电话
近7天带看次数
0
- 总带看 0 次 -

诚卓高端地址

为你推荐新房 查看更多