峰景里二期 - M-37401

  • 图片(9)
  • 户型图(1)
分享房源
120
10169.49 元/m²
3室2厅
中层 /共32层
毛坯
118m²
年代不明/ 住宅
小区名称 峰景里二期
所在区域 简阳城区   河东新区
所属学区 射洪坝筒车小学
房源编号 M-37401
看房时间 咨询经纪人
15902880504
电梯

基本信息

基本属性
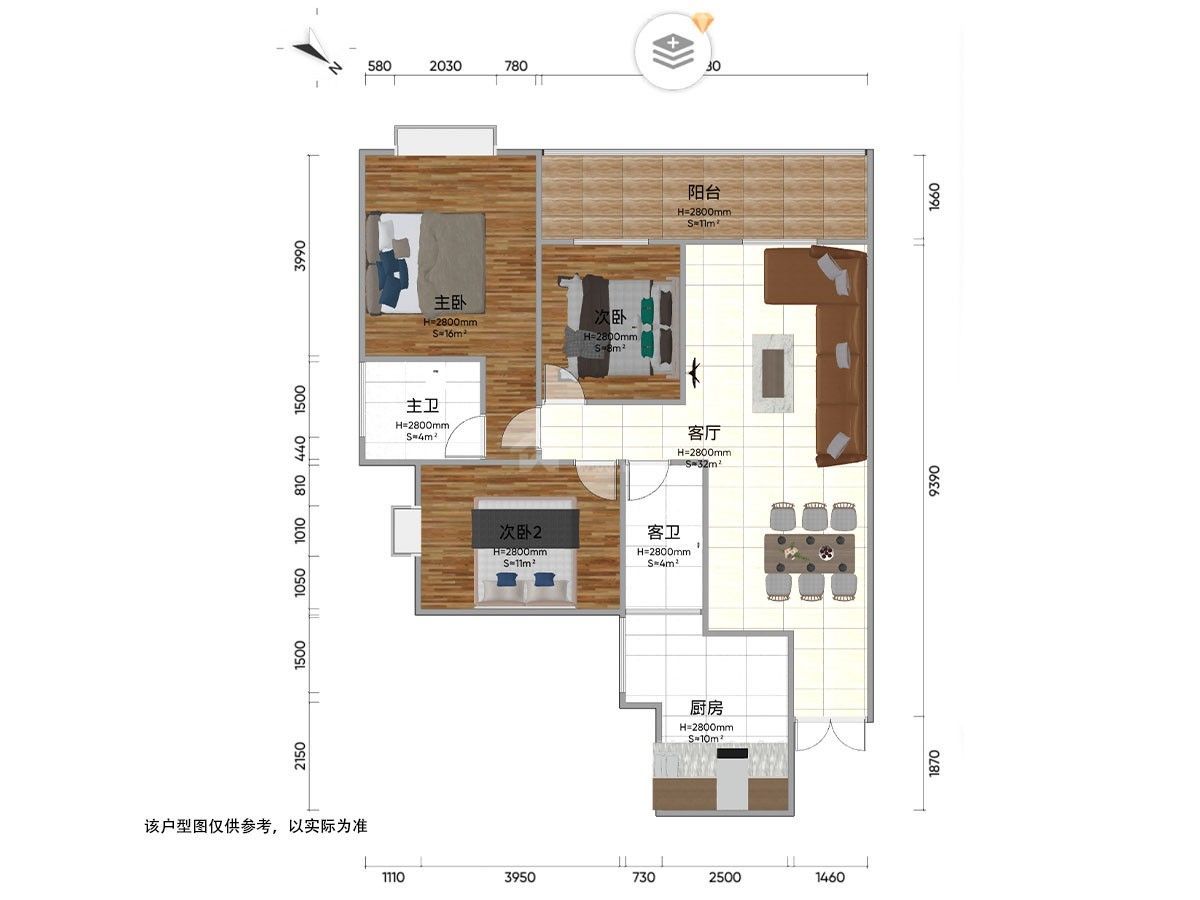
  • 房屋户型 3室2厅 1厨 2卫
  • 所在楼层 中层 /共32层
  • 建筑面积 118m²
  • 房屋税收 个税
  • 使用面积 0m²
  • 建筑类型 高层
  • 附属面积 0m²
  • 房屋布局 暂无数据
  • 房屋朝向
  • 建筑结构 暂无数据
  • 装修情况 毛坯
  • 梯户比例 2梯6户
  • 所属学区 射洪坝筒车小学
  • 出让年限 暂无数据
  • 交易权属 暂无数据
  • 房屋用途 住宅
  • 房屋标签 电梯
  • 房屋特色 暂无数据
  • 房屋配套

房源照片

户型图
看房记录
带看时间
带看经纪人
咨询电话
近7天带看次数
0
- 总带看 0 次 -

峰景里二期地址

为你推荐新房 查看更多