顺城街单位小区成熟地段套三

  • 厨房(1)
  • 卫生间(1)
  • 客厅(1)
  • 卧室(3)
  • 阳台(2)
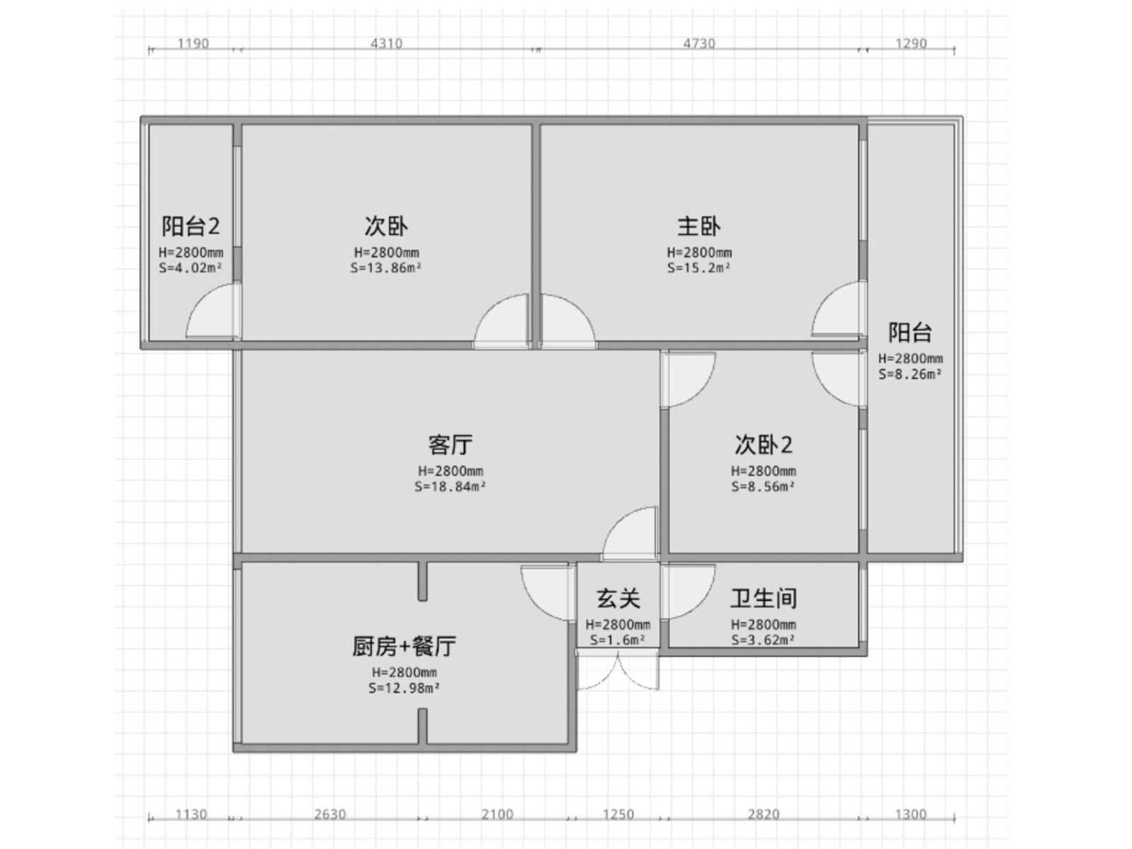
  • 户型图(1)
分享房源
32
3298.97 元/m²
3室2厅
高层 /共7层
毛坯
97m²
年代不明/ 住宅
所在区域 简阳城区   城中片区
所属学区 简城第三幼儿园
房源编号 M-13139
看房时间 咨询经纪人
13558802503
满5年

基本信息

基本属性
  • 房屋户型 3室2厅 1厨 1卫 1阳台
  • 所在楼层 高层 /共7层
  • 建筑面积 97m²
  • 房屋税收 个税
  • 使用面积 0m²
  • 建筑类型 多层
  • 附属面积 0m²
  • 房屋布局 暂无数据
  • 房屋朝向
  • 建筑结构 暂无数据
  • 装修情况 毛坯
  • 梯户比例 1梯2户
  • 所属学区 简城第三幼儿园
  • 出让年限 暂无数据
  • 交易权属 暂无数据
  • 房屋用途 住宅
  • 房屋标签 暂无数据
  • 房屋特色 该房位于城中顺城街单位房.零公摊,套三双阳台,通透户型,看房方便。
    温馨房地产专注简阳房产30年——用心打造放心中介品牌!
  • 房屋配套 床;衣柜;沙发;书桌;橱柜;油烟机;

房源照片

厨房
卫生间
客厅
卧室
阳台
卧室
阳台
卧室
户型图
看房记录
带看时间
带看经纪人
咨询电话
2021-04-30
13688389313
2021-04-22
15183737557
2021-04-15
15183737557
近7天带看次数
0
- 总带看 3 次 -

顺城街教研室地址

为你推荐新房 查看更多